Favorite
print Print
share Share
For Lease

$50.00

 / Monthly

453 CHURCH STREET , Toronto (Church-Yonge Corridor), Ontario M4Y2C5

1 Baths

Remarks

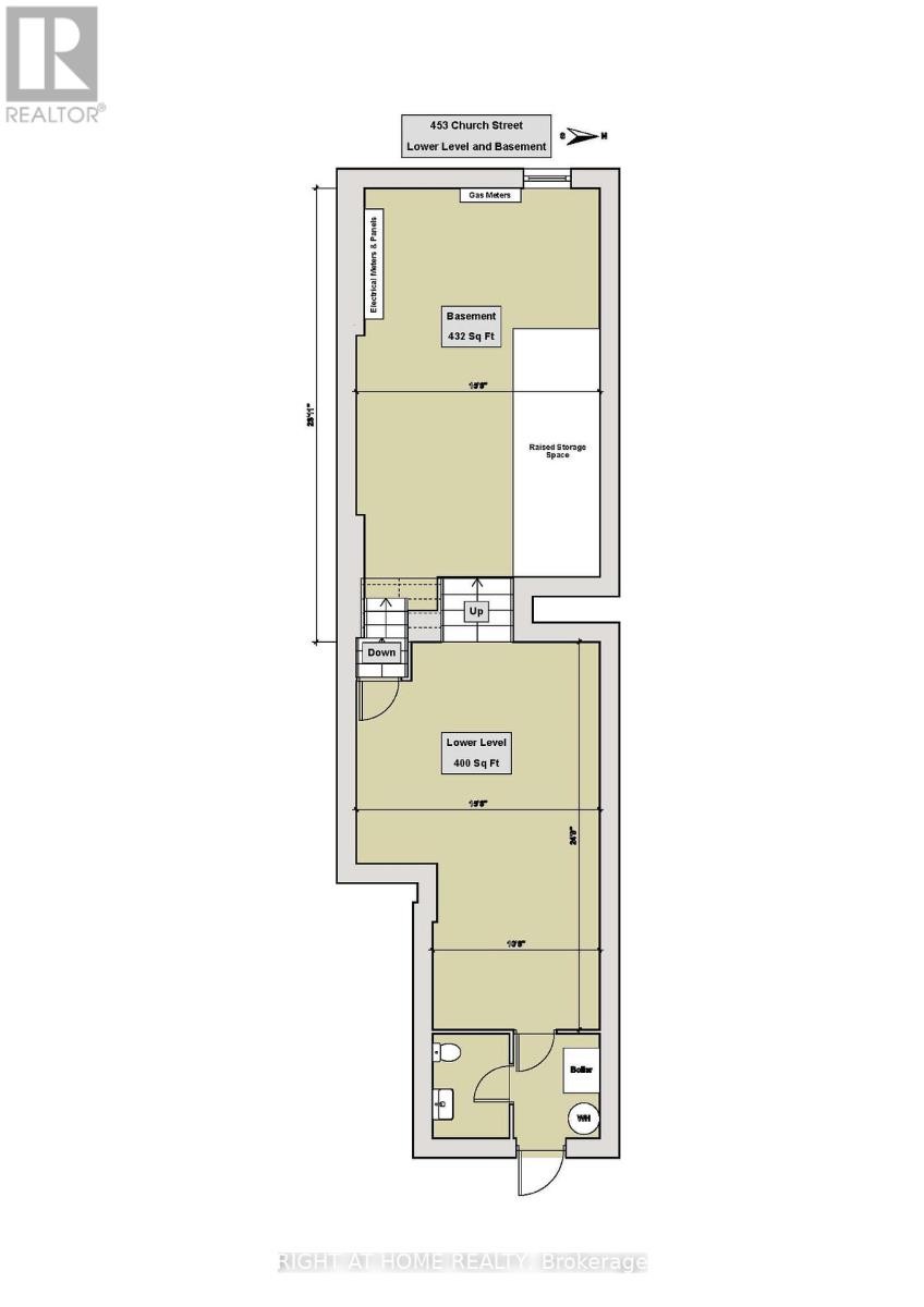
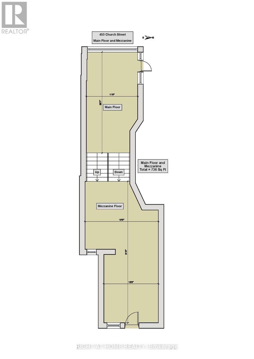
Nestled at the vibrant intersection of Church Street and Maitland, this commercial unit offers an enticing opportunity in the very heart of Church Street Village, one of the citys most dynamic and sought-after districts. Surrounded by boutique shops, cafés, professional offices, and bustling foot traffic, this location is the embodiment of urban energy and accessibility. Its character building, high ceilings, dedicated entrance, autonomous heating and cooling, and practical basement storage make it a rare find in the neighbourhood. The thoughtfully designed split-level layout maximizes space and enhances operational flexibility. The division allows for easy separation between customer-facing areas and private staff or consultation zones. Retailers can showcase merchandise with creative displays, while professionals may utilize the levels for reception and workspace. If you're seeking a location that offers both visibility and versatility, this property deserves your careful consideration. The possibilities are as limitless as your imagination, and the neighbourhood provides the energy and support needed to help your business flourish. Arrange a viewing today and discover how this unit can become the home for your next venture. (id:7526)

Property Summary

  • Neighbourhood: Church-Yonge Corridor
  • Lot Frontage: 17.0 Feet
  • Lot Depth: 89.0 Feet
  • Lot Size: 17 x 89 FT
  • Bathrooms (Total): 1
  • Zoning: CR3

Property Features:

  • Amenities Nearby:
    Public Transit
  • Equipment Type:
    Water Heater
  • Lease Type:
    Net
  • Property Type:
    Retail
  • Rental Equipment Type:
    Water Heater

Building Features:

  • Cooling Type:
    Partially air conditioned
  • Heating Type:
    []

Office Listing: 

TROY ROBERTS , Salesperson

Lifestyle
Neighbourhood Info

Get More Info

Book a tour